• Projekte
    • Aktuell
    • Bauten
    • Projekte
    • Studien
    • Wettbewerbe
  • Themen
    • Arealüberbauung
    • Eigenheim
    • Genossenschaftliches Wohnen
    • Geschäftshaus
    • Holzbau
    • Infrastruktur
    • Mehrfamilienhaus
    • öffentliche Bauten
    • Umbau / Renovation
    • Urbanes Wohnen
  • Unternehmen
    • Profil
    • Dienstleistungen
    • Team
    • Kunden
  • Kontakt

\H\L\S Architekten

INFO
ÜBERSICHT
  • Konzept

    Pumpkin Film AGBüroumbau, Zürich 2001

    Konzept
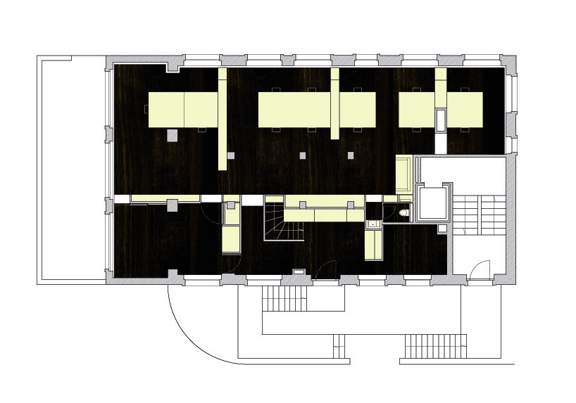
  • Grundriss
    Grundriss
  • Eingang
    Eingang
  • Arbeitstische
    Arbeitstische
  • Arbeitsbereich
    Arbeitsbereich

Pumpkin Film AG, Büroumbau, Zürich 2001

← previous
→ next

Pumpkin Film AG

Umbau Büroräumlichkeiten
Auftraggeber: Pumpkin Film AG, Zürich
Direktauftrag

Planung, Umbau: 2000- 2001

\H\L\S Architekten © 2026