Spinnerkönig
Wohnüberbauung auf dem Areal der ehemaligen Textilfabrik Kunz in Windisch AG
Auftraggeberin: HIAG Immobilien AG, Zürich
Wettbewerb, 1. Preis 2010, im Bau, Bezug Sommer 2014
Landschaftsarchitekt: Berchtold.Lenzin Landschaftsarchitekten, Zürich
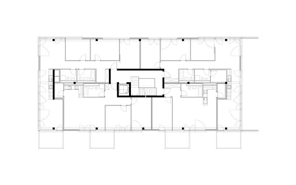
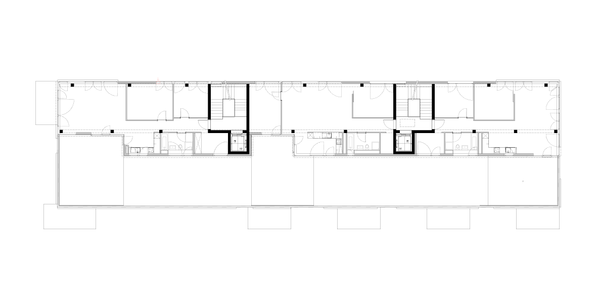
61 Wohnungen
Tiefgarage mit 185 Einstellplätzen
Hauptnutzfläche Wohnen: 5’400m2
Bausumme BKP 1-5 (inkl. Tiefgarage Areal): ca. 30 Mio. CHF
Das ehemalige Textilindustrieareal wird in Etappen und mit verschiedenen Teilprojekten und Projektteams entwickelt. Die alten Fabrikgebäude werden zum Teil umgenutzt und teilweise durch Neubauten ersetzt. Für das Baufeld East-Side, das aus den Baufeldern M2, M3, M4 und einer Sammelgarage besteht, fand ein Architekturwettbewerb statt, den HLS Architekten für sich entscheiden konnten.
In drei Neubauten entstehen Mietwohnungen von verschiedener Grösse und Art. Allen gemeinsam ist die Ausrichtung auf die Flusslandschaft und die ersten Juraausläufer. Die Innenräume spielen mit der Spannung zwischen der Baustruktur und den (flexiblen) Innenausbauten. Durch die Inszenierung der Baustruktur erhalten die Wohnungen einen loftartigen Touch und erweisen der Geschichte des Kunz-Areals so ihre Referenz.










