• Projekte
    • Aktuell
    • Bauten
    • Projekte
    • Studien
    • Wettbewerbe
  • Themen
    • Arealüberbauung
    • Eigenheim
    • Genossenschaftliches Wohnen
    • Geschäftshaus
    • Holzbau
    • Infrastruktur
    • Mehrfamilienhaus
    • öffentliche Bauten
    • Umbau / Renovation
    • Urbanes Wohnen
  • Unternehmen
    • Profil
    • Dienstleistungen
    • Team
    • Kunden
  • Kontakt

\H\L\S Architekten

INFO
ÜBERSICHT
  • GeerenackerEinfamilienhaus, Gockhausen 2011-2013

  • Erdgeschoss und Garten
    Erdgeschoss und Garten
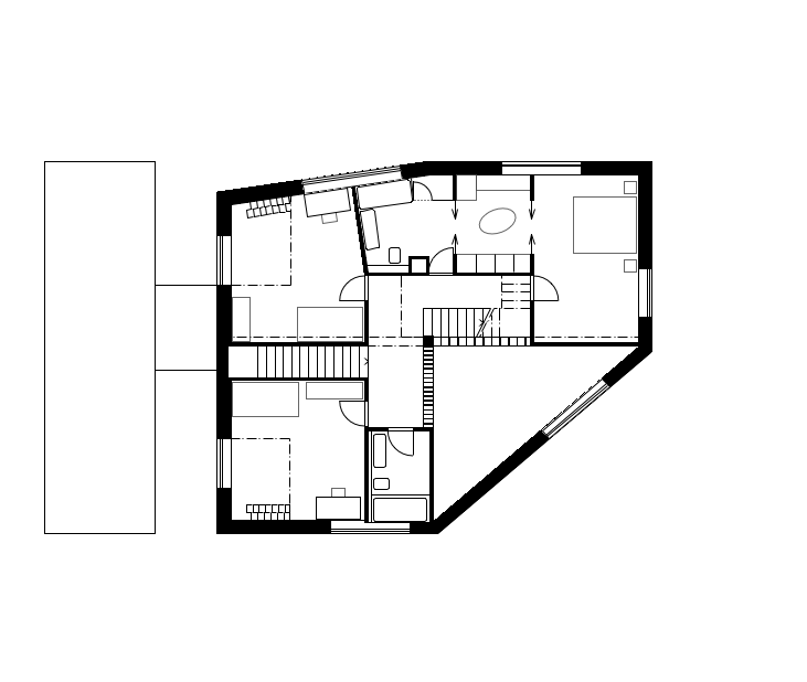
  • 1. Obergeschoss
    1. Obergeschoss
  • Dachgeschoss
    Dachgeschoss

Geerenacker, Einfamilienhaus, Gockhausen 2011-2013

← previous
→ next

Geerenacker

Neubau eines Einfamillienhauses
Private Bauherrschaft

Planung ab 2011, Baubeginn November 2012, Bezug Sommer 2013

Volumen SIA 416:  1‘600 m3, HNF: 255 m2

\H\L\S Architekten © 2026