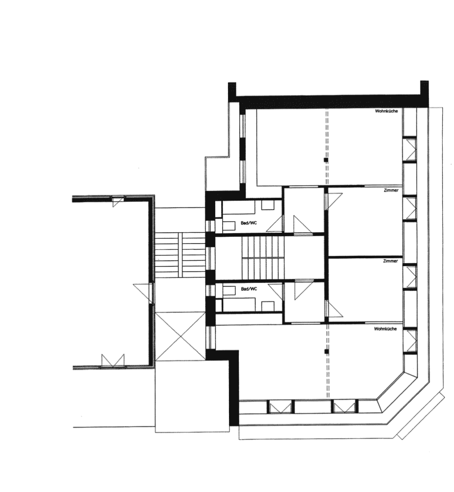
Aufstockung Langstrasse
Aufstockung auf ein Blockrandgebäude mit 4 Wohnungen
Kanzleistrasse 70, Zürich
Auftraggeberin: Konsum Verein Zürich
Projektstudie 1994
Hauptnutzfläche 294qm
Auf dem Eckgebäude Lang-/Kanzleistrasse besteht eine Ausnützungsreserve, die durch eine Aufstockung realisiert werden soll.
Die bestehende Bausubstanz soll für die Aufstockung möglichst unverändert bleiben. Die Logik der bestehenden Grundrisse wird nach oben weiter geführt. Gestalterisch wird die Aufstockung zu einem neuen, städtischen Mansardendach, das sich als leuchtender Kristall über dem bestehendem Gesimse präsentiert.



